出幅2メートル弱の庭(横浜市 旭区)
1.5m〜2mの場所を庭にする方法
庭の地面に棒切れで直径3メートルの円を描ければ、そこをテーブルを囲んで過ごす場所にできます。
石井邸
では2メートル前後だとどうなるか、テーブルを片側に寄せて半円形に椅子を配置する座り方となります。
石川邸
これはこれでとても居心地がよく、広い庭であっても、あえて一角にこういうコンパクトな『外の部屋』を仕立てることもあります。
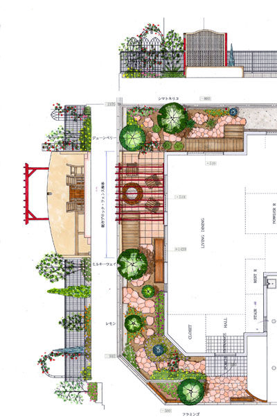
新築の小湊さんちは、建物の脇の道路側と裏側に1メートル80センチの通路というか庭スペースがあり、引越しが済み、さてさて、そこをどのように考えたらいいだろうということでご来店。細長い場所がただの通路にならないよう『ガーデニングを楽しむ・外の部屋で過ごす・縁側で自然を感じる』という3つのエリアに分け、こういうプランになりました。
ガーデニングエリア
バーベキューテラス
縁側のある庭
では玄関脇から順にビフォー・アフターを。




















ガーデニングエリアへはアーチで誘惑し、乱張りを曲げながら飛び飛びで歩くように敷き、幅を取らない何本かの樹木で立体的に。
ここでのポイントはゆっくり歩くように仕立てること。まっすぐ歩くと通路、曲がって歩けば庭になるのです。それと植物に包まれること。見下ろすだけではなく目線や頭上に葉っぱがあれば、そこは畑ではなく庭空間になります。
レモン
ブルーベリー
ブルーエンジェル
エレガンテシマ
ヤマボウシ
バーベキューテラスは道路からの目隠しと居心地の良さのために、既存のフェンスを撤去してコンクリートの壁に。庭づくりにおいて多くの場合、目隠しの具合が重要なポイントです。
2メートル弱の出幅だと、階段を設けたら「過ごす場所」の確保は困難になるのでこのように庭を持ち上げます。すると「狭めの庭」から「部屋が広がった」というように、庭スペースが部屋の一部として認識できるようになるのです。
あとはそこでの過ごしかたを考えながら椅子やベンチを配置し、パーゴラで部屋っぽさを出し、照明器具を配することで夜も室内と同じように生活空間として楽しめるようにする。このように、家を設計するように庭を組み立てて行くことで、カーテンを開け外を感じながら暮らせるようになり、ともすると防草シートと砂利で通路にしてしまいがちな場所に「心地いい外の部屋」が出現するのです。
バーベキューテラスから裏の縁側のある庭へ進みます。
ジューンベリー
シマトネリコ
スカイロケット
庭が完成し、「あの時いわふちさんに出会えて幸運でした。そうじゃなかったら今頃カーテンを閉めて、休日の度に文句を言いながら雑草を引っこ抜く暮らしになっていたと思います」と、ご夫婦からこの上なくうれしい言葉を頂戴しました。こういうのを自分で言うのははばかられますが、あまりに光栄で、それを心に刻み込んで次の設計の糧としています。
夜の住宅地に浮き立つ庭の灯りっていいですよね。
10年後も、20年後も、小湊さんちの庭が輝き続けますように。

















